Łódź  / 888/6700/OLW
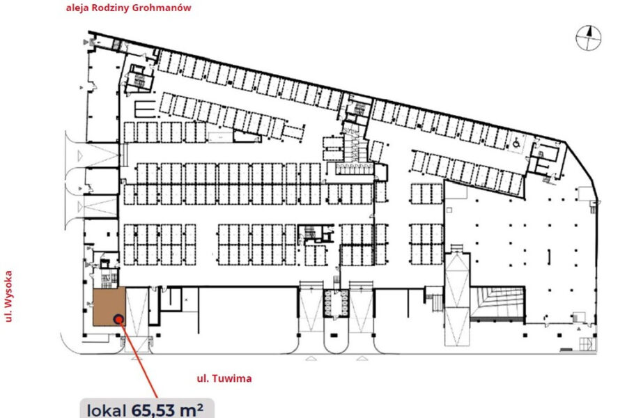
Lokal, 65.53 m2
Lokalizacja
Państwo
Polska
Województwo
Łódzkie
Miasto
Łódź
Dzielnica
Łódź-Śródmieście
Ulica
Juliana Tuwima
Podstawowe informacje
Cena
5 570 pln
Cena za m2
85.00 pln
Powierzchnia
65.53  m2
Budynek
Rok budowy
2025
Liczba pięter
9
















