Kraków / 896/6700/OLW
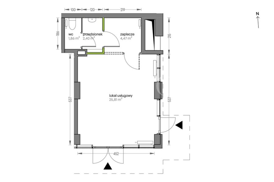
Lokal, 34.54 m2
Lokalizacja
Państwo
Polska
Województwo
Małopolskie
Miasto
Kraków
Dzielnica
Płaszów
Ulica
Myśliwska
Podstawowe informacje
Cena
4 318 pln
Cena za m2
125.00 pln
Powierzchnia
34.54 m2
Budynek
Rok budowy
2025
Informacje dodatkowe
Winda










