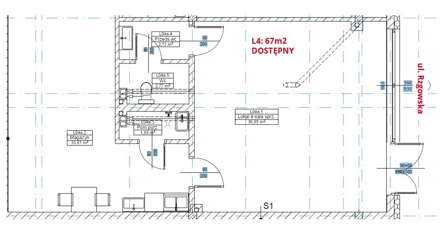
Łódź / 884/6700/OLW
Lokal, 93.16 m2
Lokalizacja
Państwo
Polska
Województwo
Łódzkie
Miasto
Łódź
Ulica
Rzgowska
Podstawowe informacje
Cena
8 384 pln
Cena za m2
90.00 pln
Powierzchnia
93.16 m2
Budynek
Rok budowy
2026
Liczba pięter
2
Informacje dodatkowe
Winda
Monitoring
Alarm


















